Skip to content
ESILEHT
Matemaatika Võlu Arhitektuuris #1
Matemaatika Võlu Arhitektuuris #2
VALI KATEGOORIA
Ettepanekud valitsusele – ehitusmess nr.2
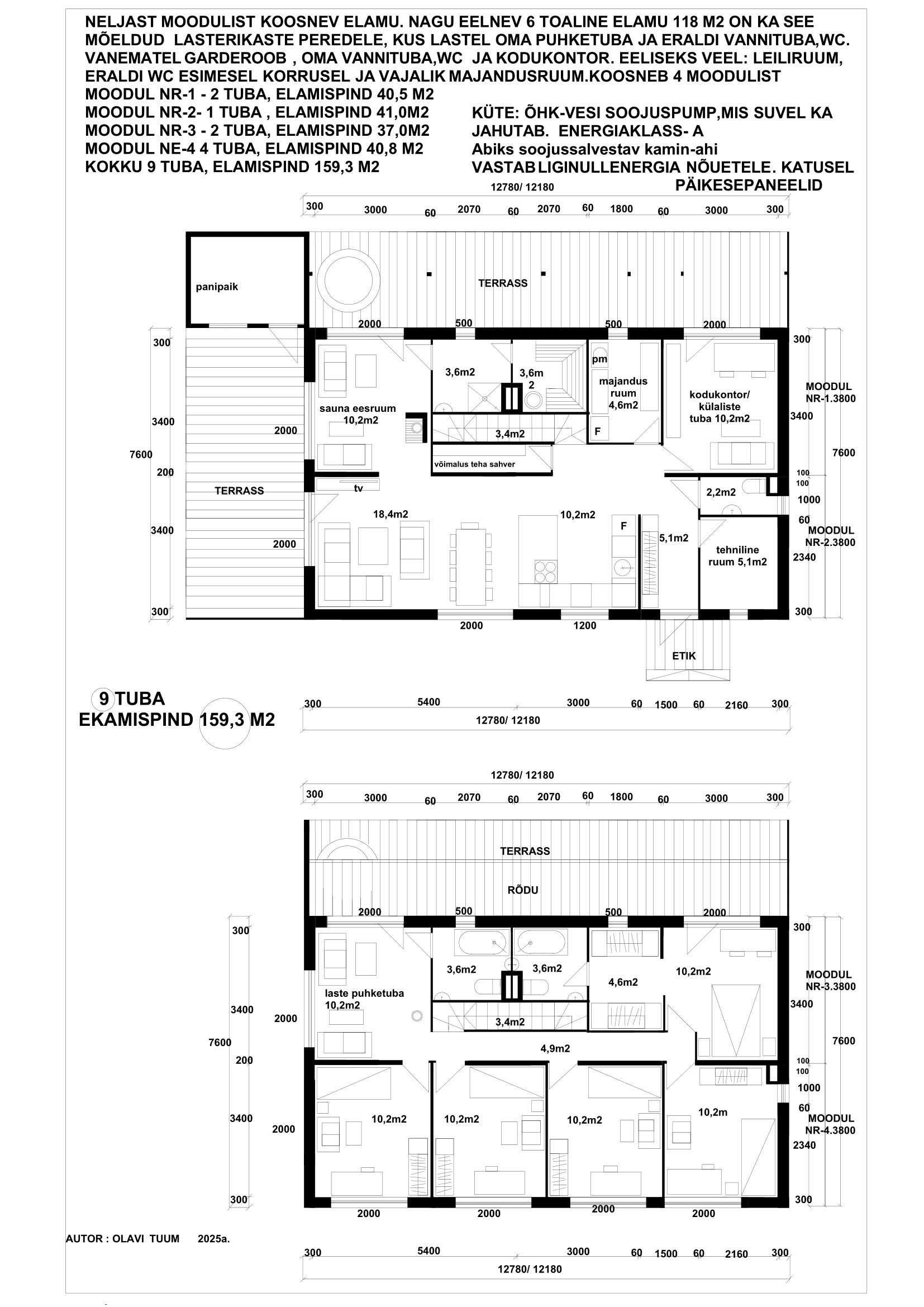
Noored pered ja mikroelamud
Noored pered ja mikroelamud
olavituum
2025-04-15T14:25:08+00:00
Iive ja pensionärid
Noored pered ja mikroelamud
31
.
32
.
33
.
34
.
35
.
36
.
37
.
38
.
39
.
40
.
41
.
42
.
43
.
44
.
45
.
46
.
47
.
48
.
49
.
50
.
51
.
52
.
Mikro
53.
54.
55.
56.
57.
58.
59.
60.
Iive kahekordsed
61.
62.
63.
64.
65.
66.
67.
68.
Page load link
Go to Top